Hawk Alpine
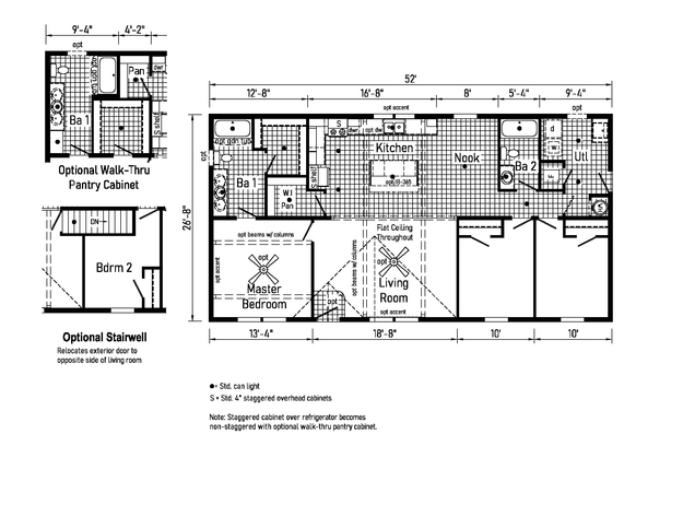
Model #: BP28523B | Dimensions: 28x52
3 bed(s)
2 bath(s)
1387 sqft
Description:
- Alpine Dormer with Black Columns and (2) Black Windows
- 1-Lite Black Rear Door and 3-Lite Black Front Door
- Blacktop Exterior Package'
- Hickory Beams in Kitchen, Nook and Living Room
- Black Appliances
- Sliding Glass Door
- 2 Panel Interior Doors
- Designer Wall Master Bedroom
- Pull Down Black Faucet at Kitchen Sink and Black Faucets Throughout
Style: Sectional Homes
Manufacturer: Cavco Shippenville
Location: Youngsville, PA
On Display?: Yes




















