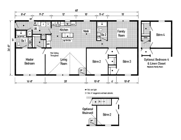
The Family Room
Model #: BP28603A | Dimensions: 28x60
3 bed(s)
2 bath(s)
1600 sqft
Description:
- Family Room/ Living Room Model
- Black Top Exterior Package
- 22' Dormer
- Black Exterior Front & Rear Door
- Eat-in Island
- Designer Wall in Nook
- Black Appliance Package
- Grey Floating Entertainment Center with Black Plank in Living Room
- Fiberglass Tubs
- Window in Master Bath
- Crescent Edge T/O
- Grey Painted Cabinets in Kitchen with Black Linen and Pantry
Style: Sectional Homes
Manufacturer: Cavco Shippenville
Location: Youngsville, PA
On Display?: Yes














